
Vue arrière

Vue avant

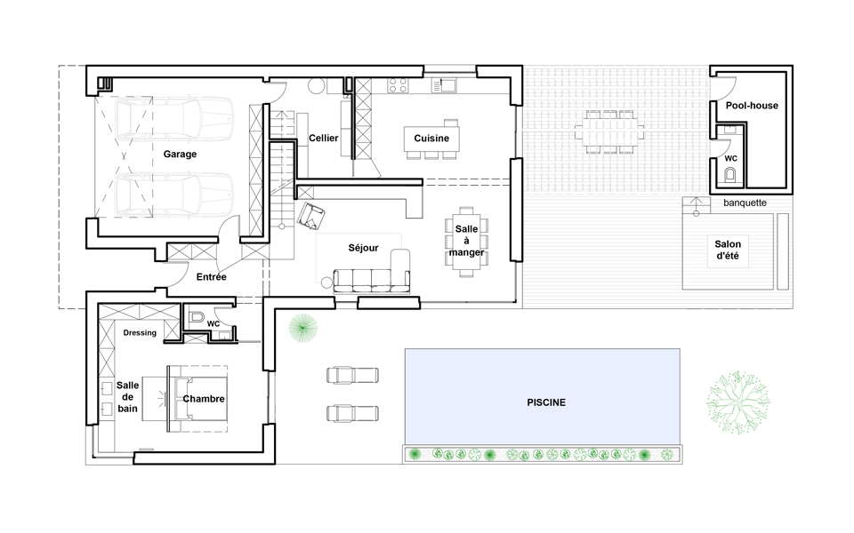
Plan du rez-de-chaussée

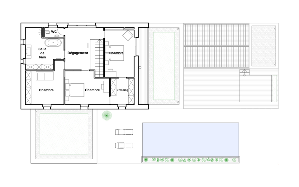
Plan du premier étage
Mission : conception
Maîtrise d'ouvrage : privée
Maîtrise d'oeuvre : Maurin Architecture
Localisation : Sainte Croix en Plaine (68)
Surface : 203 m²
Dates : conception
septembre 2015 – décembre 2015
Le souhait des clients a conduit à la réalisation d'une habitation aux formes pures avec un jeu de volume en porte-à-faux, mis en valeur par le contraste de la pierre et de l'enduit blanc.
Cette simplicité a consisté à imaginer les aménagements extérieurs comme une continuité de la maison.
Ainsi, la création d'un pool house relié à l'habitation par une pergola permet d'étirer le profil de la bâtisse, tout en créant une terrasse protégée et un salon d'été creusé dans la terrasse.
La piscine centrale devient le point de convergence du regard. La villa s'ouvre largement sur l'extérieur, tandis que du côté rue l'intimité des vues est de mise.
Les contraintes urbaines ont nécessité la mise au point de toitures entièrement végétalisées, cette contrainte s'est transformé en ligne directrice : la végétation comme élément structurant du projet.
De la même façon l'idée de créer une clôture sur rue faite de pots plantés est une manière harmonieuse et originale de répondre à des contraintes règlementaires.
L'architecture intérieure a été pensée selon le mode de vie des clients, avec un désir de grands espaces ouverts sur l'extérieur, tout en démarquant l'espace de vie des parents de celui des enfants. La suite parentale est indépendante du reste de la maison et fait face au bassin de nage. L'étage réservé aux enfants permet une évolutivité des espaces avec le temps.