Sélectionné et publié au prix national de la construction bois 2018

Vue depuis le jardin

Vue depuis le jardin

Vue depuis le jardin

Vue depuis le jardin

Vue depuis le jardin

Vue depuis le jardin

Vue depuis la rue

Vue depuis la rue

Vue depuis le jardin

Vue depuis le jardin

Vue depuis le jardin

Vue intérieure

Vue intérieure

Vue intérieure

Vue depuis le jardin

Vue de nuit

Vue depuis la rue

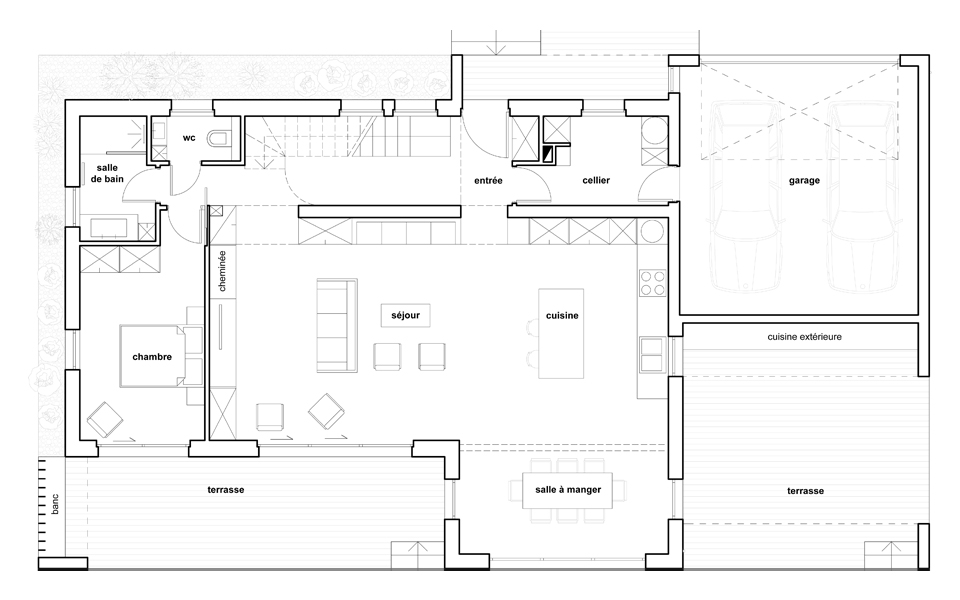
Plan rez-de-chaussée

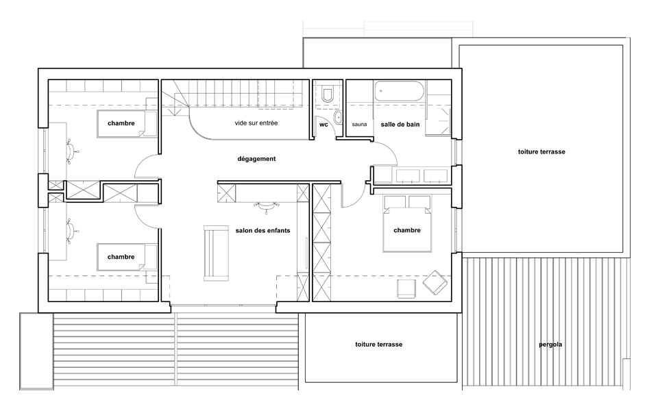
Plan du premier étage
Mission : complète + économie du projet
Maîtrise d'ouvrage : privée
Maîtrise d'oeuvre : Maurin Architecture
Localisation : Colmar
Surface : 180 m²
Dates de conception : mars 2014 – nov 2014
Date de livraison : août 2015
Il s'agit d'une habitation neuve réalisée en ossature bois (RT2012).
Le concept de la maison a été pensé comme une modernisation de la typologie du pavillon classique. Cette modernisation est à la fois stylistique, en jouant sur les contrastes de matériaux. Mais elle est aussi fonctionnelle et tient compte des modes de vie actuels dans l'aménagement des espaces et dans leur capacité à évoluer.
L'habitation est traitée comme un emboîtement de deux volumes : le corps central est conçu comme un monolithe gris, sans débord de toiture, en contraste avec un volume bardé de bois qui parait être en lévitation et qui entoure la maison en marquant son horizontalité.
La maison est revêtue d'ardoises grises qui permettent d'afficher une inédite continuité entre les murs et la toiture. Les disgracieuses et habituelles gouttières sont dissimulées derrière ce revêtement.
Le volume de la salle à manger au sud permet de créer deux terrasses distinctes, toutes deux protégées du soleil par un système de pergolas.
La construction en bois permet d'obtenir des très bonnes performances thermiques, en alliant un réel confort de vie intérieur. L'autre avantage du projet est la rapidité de construction de l'ossature en bois de la maison.