
Vue sur l'extension

Vue état initial

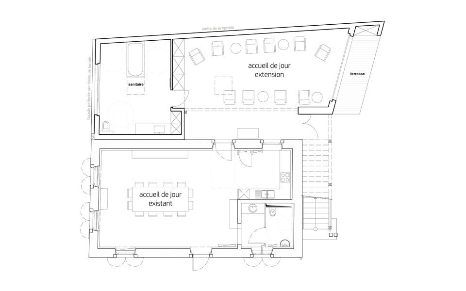
Plan du rez-de-chaussée
Mission : complète
Maîtrise d'ouvrage : publique - Hôpital intercommunal de Soultz-Issenehim
Maîtrise d'oeuvre : Etienne Meyer Architecte & Maurin Architecture
Localisation : Issenheim
Surface : 75 m²
Date d'études : mars 2015 - juin 2015
Début des travaux : septembre 2015
Le projet est une extension de l'accueil de jour de l'hôpital intercommunal de Soultz-Issenheim.
Le concept du projet a été de proposer un espace chaleureux, ressemblant plus à un salon qu'à un hôpital.
Le nouvel espace est conçu pour être polyvalent et en communication avec la bâtisse existante.
Toute la difficulté du projet réside dans le fait d'emboiter ce volume sous une coursive extérieure.
La forme est la résultante des contraintes techniques, en effet le volume vient s'établir contre les limites de propriétés. Le choix de l'ossature bois s'est fait naturellement pour sa capacité à surmonter les contraintes techniques et thermiques.
La recherche d'une insertion harmonieuse dans son environnement a conditionné les choix suivants :
- la diminution de la hauteur de l'extension
- la mise en place d'une toiture végétalisée, visible depuis l'étage
- la reprise de matériaux existants comme le bois et l'enduit
- la mise en place d'une grande baie vitrée avec une terrasse couverte
qui permet d'ouvrir l'espace vers le jardin existant.