
Vue extérieure

Vue intérieure

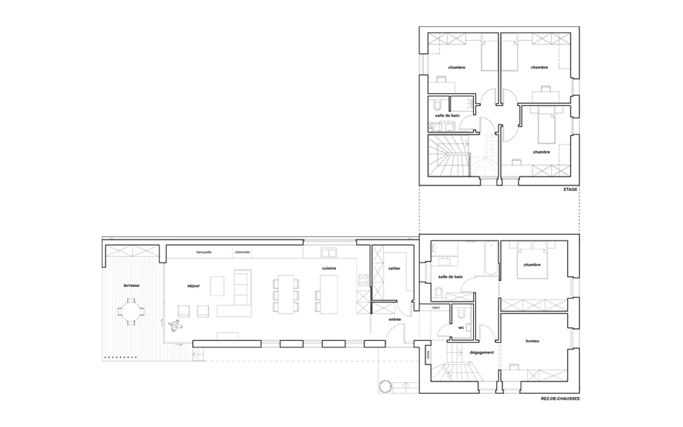
Plan rez-de-chaussée et étage
Mission : conception
Maîtrise d'ouvrage : privée
Maîtrise d'oeuvre : Maurin Architecture & Etienne Meyer Architecte
Localisation : Colmar
Surface : 68 m²
Dates de conception : avril 2014 – août 2014
Date de livraison : été 2015
Le projet global consiste en la rénovation d'une habitation existante du milieu du XXe siècle, avec son extension et la création d'une piscine.
La nouvelle entrée se situe à la rencontre entre la maison existante et l'extension. Cette dernière entièrement en ossature bois comprend : un cellier, une cuisine ouverte sur un salon / séjour qui se prolonge en terrasse couverte.
La maison actuelle est entièrement réaménagée avec une suite parentale au rez-de-chaussée, un espace de jeu, puis les chambres d'enfants et la salle d'eau à l'étage.
L'extension est conçue comme un volume simple qui s'ouvre de plus en plus vers l'extérieur au fur et à mesure que l'on s'approche du jardin. Un rythme vertical se créé par l'intermédiaire des fenêtres, du bardage et des poteaux sur la terrasse.
La toiture plate est imaginée comme un élément continu qui se plie et qui apporte un profil graphique et aérien à la construction. Cet effet est souligné par le contraste du zinc et du bardage bois vertical à claire-voie.
L'architecture intérieure et la décoration ont été pensé au même titre que le reste du bâtiment, avec le maximum d'éléments et de fonction intégrées dès le départ.