











Mission : complète + décoration
Maîtrise d'ouvrage : privée
Maîtrise d'oeuvre : Maurin Architecture
Surface : 85 m²
Dates d'études : janvier 2015 - mai 2015
Date de concours : juin 2016
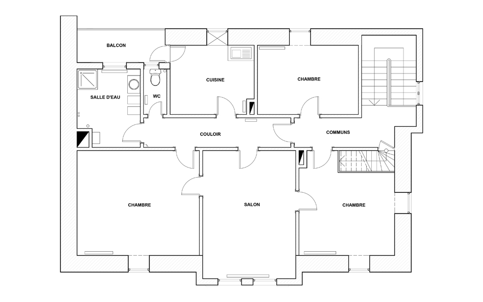
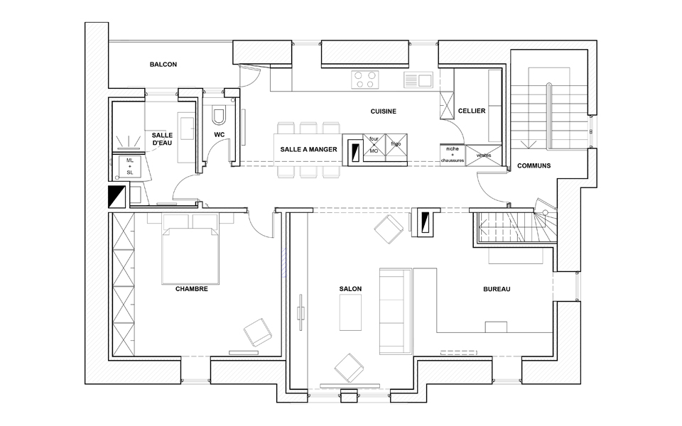
Cette réalisation est un réaménagement et une rénovation lourde d'un appartement des années 30. Initialement l'appartement était très cloisonné et sombre ; l'électricité et la plomberie étaient encore en apparent. Le travail architectural a consisté à ouvrir les volumes de façon judicieuse afin d'avoir une circulation plus fluide et des espaces de vie en accord avec les modes de vie actuels. L'ensemble a été isolé, permettant de dissimuler le nouveau réseau électrique et sanitaire. Un travail sur l'architecture intérieure a été effectué, ainsi tous les rangements et éléments techniques disgracieux (chaudière/machine à laver/cellier/rangements) sont dissimulés dans des placards sur-mesure sans poignées. Enfin la mission s'est étendue jusqu'au choix des matériaux et de la décoration de style scandinave.